panoramic view
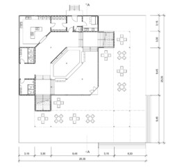
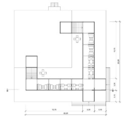
The beach café with its large open-air terrace is easily reached over two long staircases and with its its 45° turn designed to have a perfect orientation towards the ocean. The interior of the café is inspired by the alignment of the building. Following the visual axis, a diamond-shaped bar invites customers to order snacks and drinks to go. Separated by two platforms on the sides of the bar, the service rooms and the visitors' toilets are located in the rear area. Turning outwards on the platforms, large staircases lead to the upper floor. Here is the actual guest area with table service. Through a continuous window front along the two crossing tube-like rooms, guests have an unobstructed view of the sea while dining. To reduce the feeling of a long tunnel and to zone the long spaces, the tables are separated by ceiling-high backrests of the benches. At the crossing point of the two corridors, the two unseated and fully glazed observation rooms offer a wide panoramic view over the beach and the sea.
Study project Waterkant 2.0 I Coordinated by Prof. Johann Stief I Artistic member of staff Julian Löhr I Winter semester 2020/21








The brief was to design a unique beach café and to consider not only practical workflows but also the routing of visitors. The café should consist of cubes arranged in a row or on top of each other, with a pillar grid of 3.15 m x 3.15 m. The aim was less to work out the exact materials and furnishings, but rather to gain an insight into the design of small-scale architecture.
After the initial brainstorming, I decided to turn my beach café by 45°, because it was important to me that all visitors should be able to enjoy the best possible view of the sea. The guest room was to be moved mainly to the 2nd floor, as a better view is possible from here. On the lower level, there should only be the service rooms and a large open-air terrace, which is raised from the beach.
Since the exterior of the building has a clear symmetry with the crossing parts of the building, I wanted to continue this in the interior. Guests can reach the upper level from both sides via two identical staircases. Here there are also two panorama rooms, which serve visitors exclusively as viewing platforms.






panoramic view







The beach café with its large open-air terrace is easily reached over two long staircases and with its its 45° turn designed to have a perfect orientation towards the ocean. The interior of the café is inspired by the alignment of the building. Following the visual axis, a diamond-shaped bar invites customers to order snacks and drinks to go. Separated by two platforms on the sides of the bar, the service rooms and the visitors' toilets are located in the rear area. Turning outwards on the platforms, large staircases lead to the upper floor. Here is the actual guest area with table service. Through a continuous window front along the two crossing tube-like rooms, guests have an unobstructed view of the sea while dining. To reduce the feeling of a long tunnel and to zone the long spaces, the tables are separated by ceiling-high backrests of the benches. At the crossing point of the two corridors, the two unseated and fully glazed observation rooms offer a wide panoramic view over the beach and the sea.
Study project Waterkant 2.0 I Coordinated by Prof. Johann Stief I Artistic member of staff Julian Löhr I Winter semester 2020/21

The brief was to design a unique beach café and to consider not only practical workflows but also the routing of visitors. The café should consist of cubes arranged in a row or on top of each other, with a pillar grid of 3.15 m x 3.15 m. The aim was less to work out the exact materials and furnishings, but rather to gain an insight into the design of small-scale architecture.
After the initial brainstorming, I decided to turn my beach café by 45°, because it was important to me that all visitors should be able to enjoy the best possible view of the sea. The guest room was to be moved mainly to the 2nd floor, as a better view is possible from here. On the lower level, there should only be the service rooms and a large open-air terrace, which is raised from the beach.
Since the exterior of the building has a clear symmetry with the crossing parts of the building, I wanted to continue this in the interior. Guests can reach the upper level from both sides via two identical staircases. Here there are also two panorama rooms, which serve visitors exclusively as viewing platforms.






let's connect
Frederike Peters I frederike.peters@t-online.de I › LinkedIn
© and design by Frederike Peters 2022 I website made with › Laytheme I contact I legal notice
let's connect
Frederike Peters
frederike.peters@t-online.de
› LinkedIn
© and design by Frederike Peters 2022 I website made with › Laytheme