connecting bands
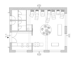
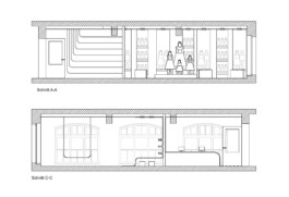
The design concept "connecting bands" is inspired by the colourful ribbons that the Sorbian people hang on their decorated maypole. Being transformed into the floor plan, fabric-covered metal constructions in shape of the waving ribbons are used for shelves, tables and seats. In the front part of the room visitors will find the souvenir shop. The "ribbon" of the sales counter winds along the south side of the room and continues into the main room, where it turns into a children's craft table including shelves. Here, children can be kept busy making miniature costumes out of fabric and paper while their parents enjoy the costume exhibition. The small and large dolls dressed in traditional dresses stand along the north side on descending and playfully arranged shelves, with integrated benches. The centrally located green pedestal for displaying lifelike dolls is recalling the festive wreath of the Sorbian Christ Child in its shape and colouring. A hanging ribbon in front of the window invites visitors to sit down and relax.
Study project Welcome to Schleife - Traditional Costume Exhibition and Souvenir Shop for the Sorbian Cultural Centre Schleife I Coordinated by Prof. Rita Rentzsch I Atistic member of staff Janna Nikoleit I Summer semester 2021




Origin of the assignment was to exhibit the Sorbian culture lived by the smallest Slavic ethnic group in south-eastern Germany, the Sorbs. The Sorbian Cultural Centre in the Schleife region is a place of communication and hosts permanent and temporary exhibitions as well as events and theatre performances.
The task was to give the traditional costume exhibition and the souvenir shop, which are located in the largest room of the building, a contemporary and unique design, inviting tourists to learn about the Sorbian culture. In addition, the integration of a work table for the dressmaker and the painting "Anna Slabina", as well as possibilities for visitors to sit down and ideas for children against boredom were to be taken into account.
I was fascinated by the many colourful accessories of the Sorbs, especially the decorations of their maypole made of long ribbons. That's why I wanted to integrate this as a guiding theme in my exhibition design. The inspiring meaning of the colours in the Sorbian flag led to the colour scheme of my design.






The design concept "connecting bands" is inspired by the colourful ribbons that the Sorbian people hang on their decorated maypole. Being transformed into the floor plan, fabric-covered metal constructions in shape of the waving ribbons are used for shelves, tables and seats. In the front part of the room visitors will find the souvenir shop, where tickets for the traditional costume exhibition can be purchased. The "ribbon" of the sales counter winds along the south side of the room and continues into the main room, where it turns into a children's craft table including shelves. Here, children can be kept busy making miniature costumes out of fabric and paper while their parents enjoy the costume exhibition. The small and large dolls dressed in traditional dresses stand along the north side on descending and playfully arranged shelves, with integrated benches. The centrally located green pedestal for displaying lifelike dolls is recalling the festive wreath of the Sorbian Christ Child in its shape and colouring. A hanging ribbon in front of the window invites visitors to sit down and relax.
Study project Welcome to Schleife - Traditional Costume Exhibition and Souvenir Shop for the Sorbian Cultural Centre Schleife I Coordinated by Prof. Rita Rentzsch I Atistic member of staff Janna Nikoleit I Summer semester 2021

Origin of the assignment was to exhibit the Sorbian culture lived by the smallest Slavic ethnic group in south-eastern Germany, the Sorbs. The Sorbian Cultural Centre in the Schleife region is a place of communication and hosts permanent and temporary exhibitions as well as events and theatre performances.
The task was to give the traditional costume exhibition and the souvenir shop, which are located in the largest room of the building, a contemporary and unique design, inviting tourists to learn about the Sorbian culture. In addition, the integration of a work table for the dressmaker and the painting "Anna Slabina", as well as possibilities for visitors to sit down and ideas for children against boredom were to be taken into account.
I was fascinated by the many colourful accessories of the Sorbs, especially the decorations of their maypole made of long ribbons. That's why I wanted to integrate this as a guiding theme in my exhibition design. The inspiring meaning of the colours in the Sorbian flag led to the colour scheme of my design.



let's connect
Frederike Peters I frederike.peters@t-online.de I › LinkedIn
© and design by Frederike Peters 2022 I website made with › Laytheme I contact I legal notice
let's connect
Frederike Peters
frederike.peters@t-online.de
› LinkedIn
© and design by Frederike Peters 2022 I website made with › Laytheme