built in comfort
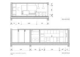
The kitchen for Johnsen Schmaling's "Stacked Cabin" was designed with a focus on built-in elements, practical workflows and a cozy get-together. The entire room is divided into two areas. While the kitchen area includes a cooking island, kitchen counter with floor-to-ceiling built-in cabinets and a utility room, the living area features a seating niche and a natural wood table. The floating appearance of the central cooking island is enabled by two I-beams and a braced steel rectangle within the island, to which the cabinets are bolted. The spacious utility room can be separated from the kitchen with a sliding door and offers enough storage space for groceries, washing machine and dryer. To create a harmonious atmosphere, the cool concrete surfaces of the floor and countertops are contrasted by warm oak wood elements. The spacious seating niche connects the living zone with the kitchen area and provides a communicative gathering.
In collaboration with Liv Burhenne I Study project My workshop - kitchen cabin I Coordinated by Prof. Axel Müller-Schöll I Assistant professor Dipl. Ing. Juliane Barthold I Winter semester 2020/21







In the final assignment for the "Stacked Cabin" building by Johnsen Schmaling Architects, a spacious kitchen was to be designed and created in the basement of the building. The aim was to create a multifunctional space that would become the heart of the communal gathering and invite people to eat, celebrate and work at any time of the day. Comfortable workflows, enough storage space and sufficient working area were just as important as the planning of well thought-out details.
For this purpose, a meaningful mood board was to be created first and then translated into a functional floor plan. The final design was then to be elaborated with different floor plans, sectional views and details and illustrated with axonometric drawings and renderings.
The kitchen design includes:
Floor-to-ceiling cupboards, which are recessed into the wall
Oven at eye level
A Kitchenette built into the wall with wall units, spotlights, a split sink and a drainer integrated into the worktop.
A visually floating kitchen island, with hidden storage space. The kitchen island is attached to pillars that are clad in wood.
A large wooden dining table with a panoramic view
An upholstered seating niche that connects the kitchen area with the dining area.
A utility room that can be separated with sliding doors
Materials such as oak, concrete for the worktops and dark green velvet fabric for the surface of the seatings




built in comfort






The kitchen for Johnsen Schmaling's "Stacked Cabin" was designed with a focus on built-in elements, practical workflows and a cozy get-together. The entire room is divided into two areas. While the kitchen area includes a cooking island, kitchen counter with floor-to-ceiling built-in cabinets and a utility room, the living area features a seating niche and a natural wood table. The floating appearance of the central cooking island is enabled by two I-beams and a braced steel rectangle within the island, to which the cabinets are bolted. The spacious utility room can be separated from the kitchen with a sliding door and offers enough storage space for groceries, washing machine and dryer. To create a harmonious atmosphere, the cool concrete surfaces of the floor and countertops are contrasted by warm oak wood elements. The spacious seating niche connects the living zone with the kitchen area and provides a communicative gathering.
In collaboration with Liv Burhenne I Study project My workshop - kitchen cabin I Coordinated by Prof. Axel Müller-Schöll I Assistant professor Dipl. Ing. Juliane Barthold I Winter semester 2020/21

In the final assignment for the "Stacked Cabin" building by Johnsen Schmaling Architects, a spacious kitchen was to be designed and created in the basement of the building. The aim was to create a multifunctional space that would become the heart of the communal gathering and invite people to eat, celebrate and work at any time of the day. Comfortable workflows, enough storage space and sufficient working area were just as important as the planning of well thought-out details.
For this purpose, a meaningful mood board was to be created first and then translated into a functional floor plan. The final design was then to be elaborated with different floor plans, sectional views and details and illustrated with axonometric drawings and renderings.
The kitchen design includes:
Floor-to-ceiling cupboards, which are recessed into the wall
Oven at eye level
A Kitchenette built into the wall with wall units, spotlights, a split sink and a drainer integrated into the worktop.
A visually floating kitchen island, with hidden storage space. The kitchen island is attached to pillars that are clad in wood.
A large wooden dining table with a panoramic view
An upholstered seating niche that connects the kitchen area with the dining area.
A utility room that can be separated with sliding doors
Materials such as oak, concrete for the worktops and dark green velvet fabric for the surface of the seatings




let's connect
Frederike Peters I frederike.peters@t-online.de I › LinkedIn
© and design by Frederike Peters 2022 I website made with › Laytheme I contact I legal notice
let's connect
Frederike Peters
frederike.peters@t-online.de
› LinkedIn
© and design by Frederike Peters 2022 I website made with › Laytheme