hidden talent
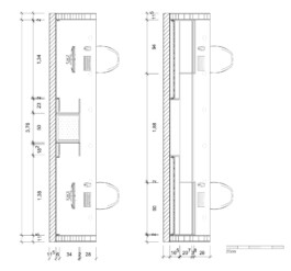
The multifunctional built-in furniture for the building "Stacked Cabins" is designed and planned under the aspect of a tidy and individual workplace. The focus of the design is on the vertically sliding pegboard walls, which invite free organization of desk utensils through possible rearrangement. The overhead cabinets above can be configured differently through two rows of horizontal sliding walls, providing storage in both open and closed areas. In addition, two cork bulletin boards can be pulled out and used. In the center of the workstation are additional hidden compartments and drawers, which are accessible through flush doors by push door opener doors. Designed for two people, the central and full-length desk top made of ash wood provides a generous work surface and ensures concentrated and creative work.
Study project Work-Life-Balance-Bar I Coordinated by Prof. Axel Müller-Schöll I Assistant professor Dipl. Ing. Juliane Barthold I Winter semester 2020/21





This assignment consisted of designing a multifunctional workplace for 1-2 people that was to be installed on the massive wall panel on the upper floor of the "Stacked Cabin" building by Johnsen Schmaling Architects. Special features such as flaps, drawers, pin boards, light etc. as well as the materials and proportions were to be considered and planned in detail.
For this purpose, the first step was to create a mood board with the selected materials and desired application possibilities and to transfer it into a functioning floor plan with the help of sketches. In the further course, the final design was to be presented with different floor plans, sections and details and illustrated with axononometries and renderings.
The workplace design includes:
Vertically sliding pegboard walls
Horizontally sliding bulletin boards made of cork
Open and hidden shelves
Free organisation of desk utensils
A drawer for a printer at desk top level
Wooden power sockets
Built-in LED light spots in suspended ceiling and LED strips above the desktop
Materials such as ash wood, cork and beige plaster




hidden talent




The multifunctional built-in furniture for the building "Stacked Cabins" is designed and planned under the aspect of a tidy and individual workplace. The focus of the design is on the vertically sliding pegboard walls, which invite free organization of desk utensils through possible rearrangement. The overhead cabinets above can be configured differently through two rows of horizontal sliding walls, providing storage in both open and closed areas. In addition, two cork bulletin boards can be pulled out and used. In the center of the workstation are additional hidden compartments and drawers, which are accessible through flush doors by push door opener doors. Designed for two people, the central and full-length desk top made of ash wood provides a generous work surface and ensures concentrated and creative work.
Study project Work-Life-Balance-Bar I Coordinated by Prof. Axel Müller-Schöll I Assistant professor Dipl. Ing. Juliane Barthold I Winter semester 2020/21

This assignment consisted of designing a multifunctional workplace for 1-2 people that was to be installed on the massive wall panel on the upper floor of the "Stacked Cabin" building by Johnsen Schmaling Architects. Special features such as flaps, drawers, pin boards, light etc. as well as the materials and proportions were to be considered and planned in detail.
For this purpose, the first step was to create a mood board with the selected materials and desired application possibilities and to transfer it into a functioning floor plan with the help of sketches. In the further course, the final design was to be presented with different floor plans, sections and details and illustrated with axononometries and renderings.
The workplace design includes:
Vertically sliding pegboard walls
Horizontally sliding bulletin boards made of cork
Open and hidden shelves
Free organisation of desk utensils
A drawer for a printer at desk top level
Wooden power sockets
Built-in LED light spots in suspended ceiling and LED strips above the desktop
Materials such as ash wood, cork and beige plaster




let's connect
Frederike Peters I frederike.peters@t-online.de I › LinkedIn
© and design by Frederike Peters 2022 I website made with › Laytheme I contact I legal notice
let's connect
Frederike Peters
frederike.peters@t-online.de
› LinkedIn
© and design by Frederike Peters 2022 I website made with › Laytheme