modern oasis
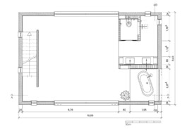
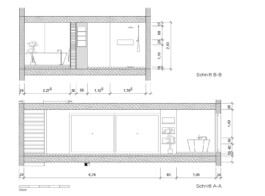
The bathroom for Johnsen Schmaling's "Stacked Cabin" was planned and designed with a "modern oasis" in mind. The aim was to create a relaxing oasis that is directly accessible from the bedroom while not losing the privacy of a bathroom. This led to the idea of dividing the given space into two areas. The toilet, located in the nothern part, is separated from the rest by a double sliding door made of frosted glass. The floor-to-ceiling shower opens up next to the toilet. A massive vanity with an embedded washbasin and shelves built into the wall is placed in the center. The focus of the southern part is on the spacious bathtub, which is positioned on a teak pedestal.
Organic materials, such as natural stone and wood, and a warm color scheme are used to create a restful atmosphere and break the hard edges of the interior.
In collaboration with Liv Burhenne I Study project Take a Bath on the Wild Side I Coordinated by Prof. Axel Müller-Schöll I Assistant professor Dipl. Ing. Juliane Barthold I Summer semester 2020








The assignment was to design a bathroom for the upper floor of the "Stacked Cabin" building. The bathroom had to be recognisable and should provide the highest level of comfort for the user.
The first step was to create a mood board showing the materials, room elements and the general atmosphere of the bathroom. Then, different floor plan variants had to be created in which the individual components of the mood board were integrated. The final design was to be realised with different floor plans, sections and details and illustrated with axonometries and renderings.
The bathroom design includes:
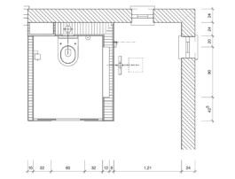
An open floor-to-ceiling shower
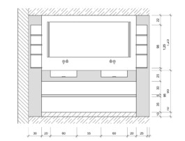
Solid washstand with built-in basins and frontal water outlets
Matt black fittings
Storage shelves built into the walls and water-repellent plaster in beige
A freestanding bathtub on a slightly raised teak platform
Shelves recessed into the wall
A toilet separated by a sliding frosted glass door
Indirect and warm lighting for a cosy and harmonious atmosphere
Materials such as teak and natural stone as well as beige plaster and microcement floor




modern oasis







The bathroom for Johnsen Schmaling's "Stacked Cabin" was planned and designed with a "modern oasis" in mind. The aim was to create a relaxing oasis that is directly accessible from the bedroom while not losing the privacy of a bathroom. This led to the idea of dividing the given space into two areas. The toilet, located in the nothern part, is separated from the rest by a double sliding door made of frosted glass. The floor-to-ceiling shower opens up next to the toilet. A massive vanity with an embedded washbasin and shelves built into the wall is placed in the center. The focus of the southern part is on the spacious bathtub, which is positioned on a teak pedestal.
Organic materials, such as natural stone and wood, and a warm color scheme are used to create a restful atmosphere and break the hard edges of the interior.
In collaboration with Liv Burhenne I Study project Take a Bath on the Wild Side I Coordinated by Prof. Axel Müller-Schöll I Assistant professor Dipl. Ing. Juliane Barthold I Summer semester 2020

The assignment was to design a bathroom for the upper floor of the "Stacked Cabin" building. The bathroom had to be recognisable and should provide the highest level of comfort for the user.
The first step was to create a mood board showing the materials, room elements and the general atmosphere of the bathroom. Then, different floor plan variants had to be created in which the individual components of the mood board were integrated. The final design was to be realised with different floor plans, sections and details and illustrated with axonometries and renderings.
The bathroom design includes:
An open floor-to-ceiling shower
Solid washstand with built-in basins and frontal water outlets
Matt black fittings
Storage shelves built into the walls and water-repellent plaster in beige
A freestanding bathtub on a slightly raised teak platform
Shelves recessed into the wall
A toilet separated by a sliding frosted glass door
Indirect and warm lighting for a cosy and harmonious atmosphere
Materials such as teak and natural stone as well as beige plaster and microcement floor




let's connect
Frederike Peters I frederike.peters@t-online.de I › LinkedIn
© and design by Frederike Peters 2022 I website made with › Laytheme I contact I legal notice
let's connect
Frederike Peters
frederike.peters@t-online.de
› LinkedIn
© and design by Frederike Peters 2022 I website made with › Laytheme