old gold
At Old Gold, everything revolves around the potato. Divided into the lower fast food area with potato store, self-service buffets, a counter for ordering and paying, and the restaurant on the upper floor, the two levels symbolize the stages below and above ground. Central features on the ground floor are organic shapes and materials, a "root ceiling" of cables and light bulbs, and oversized potato crates. The upper floor is characterized by a lot of light, plant beds and gazebos made of wooden beams. Another important room element is the continuous east wall covered with earth on the ground floor and plants on the upper floor.
Study project Taste it - A shop with food service I Coordinated by Prof. Rita Rentzsch I Artistic member of staff Gregor Müller I Winter semester 2019/20


The basis of the project was a vacant shop unit in the historic centre of Halle, for which a new utilisation including a shop and restaurant was to be designed. The theme was determined by a chosen food product, I took the potato. In the first step, a small gastronomy concept was to be developed. It provided answers to questions such as: What products are sold? What is the menu like? Which target group should be reached?
The concept should then be elaborated via floor plans, sectional views and drawings. Important design features must be recognisable here: How are the functions distributed over the two floors? Where is the internal access located? Are there other intersections between the floors? What will the sales area look like and how will the guests dine?
Since this was a first-year assignment, all plans and drawings were to be made by hand.




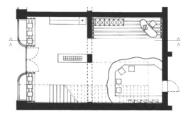
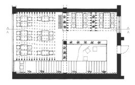
At Old Gold, everything revolves around the potato. Divided into the lower fast food area with potato store, self-service buffets, a counter for ordering and paying, and the restaurant on the upper floor, the two levels symbolize the stages below and above ground. Central features on the ground floor are organic shapes and materials, a "root ceiling" of cables and light bulbs, and oversized potato crates. The upper floor is characterized by a lot of light, plant beds and gazebos made of wooden beams. Another important room element is the continuous east wall covered with earth on the ground floor and plants on the upper floor.
Study project Taste it - A shop with food service I Coordinated by Prof. Rita Rentzsch I Artistic member of staff Gregor Müller I Winter semester 2019/20

The basis of the project was a vacant shop unit in the historic centre of Halle, for which a new utilisation including a shop and restaurant was to be designed. The theme was determined by a chosen food product, I took the potato. In the first step, a small gastronomy concept was to be developed. It provided answers to questions such as: What products are sold? What is the menu like? Which target group should be reached?
The concept should then be elaborated via floor plans, sectional views and drawings. Important design features must be recognisable here: How are the functions distributed over the two floors? Where is the internal access located? Are there other intersections between the floors? What will the sales area look like and how will the guests dine?
Since this was a first-year assignment, all plans and drawings were to be made by hand.



let's connect
Frederike Peters I frederike.peters@t-online.de I › LinkedIn
© and design by Frederike Peters 2022 I website made with › Laytheme I contact I legal notice
let's connect
Frederike Peters
frederike.peters@t-online.de
› LinkedIn
© and design by Frederike Peters 2022 I website made with › Laytheme